Clay Parks Beginning

Posted on June 28, 2018

Image
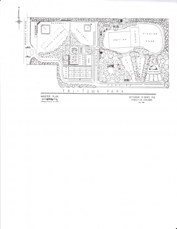
Tri Town Park Plan 6 22 2018

REMEMBERING CLAY
Clay Parks Beginning

According to Clay Parks Commissioner, Wayne Morris, there are seven Parks considered Town Parks. However, there are approximately 30 areas considered as neighborhood parks or recreation areas even if only for taking a stroll or enjoying nature. And, of course, there is the Senior Center devoted to Clay’s Seniors. A list of all these areas is available by contacting Parks and Recreation at the Clay Town Hall. The history of the first park goes back to after WWII. It was called Tri-Town Park. In 1949, the construction boom in North Syracuse was in full swing as population growth moved north out of the city of Syracuse. These new small homes had yards and fences and neighbors but no place for the children to play. In the winter of 1958-59, a concerned group was formed calling themselves The Tri-Town Recreational Association. The members were aroused citizens and representatives of the town governments of Clay, Cicero and Salina.

After surveying their entire areas, the only place they could find was the 23-acre “hole in the ground” at Buckley and Fay (name later changed) Roads. Called the “pit” by residents, it was formed when the gravel was used for fill when constructing Hancock Field during WWII. Being the only area available, the Tri-Town group nodded yes to this unsightly place when the Town of Clay offered it to them. The
Development Committee formed under Richard Weaver included Mrs. June Guarante of Clay; Richard D. Ryan and Mrs. Ann Leadley of Salina; and William M. Mentgen and William Nechtal of Cicero. They consulted with professional architects, reviewed plans and hired Seymour Ribyat, consulting engineer to draw up full development plans. More than 40,000 yards of earth moved as preliminary grading that permitted limited winter-time use that first year.
In early 1960, the group held their first and only public appeal for funds for the three-year development plan. Included was an advance Gifts campaign. It was entitled, “What is your Share?” The appeal emphasized that Tri-Town Park was a three-community project to benefit children and adults. Everyone was asked to make a pledge to be paid in installments over a three-year period for betterment and future of their home towns. It was very successful. Full development was underway.
For land clearing, rough grading, sloping of banks and installation of lights and water an estimate of $33,000 was made but “Tri-Town paid less than $6,000. Help in the form of equipment, time, muscle and talent poured in. Contractors, construction firms, builders, equipment concerns, oil companies, the military and several area industrial firms contributed to the cause. For example, $750,000 of earth moving equipment was on the job for the preliminary grading including men at no cost with free oil from the oil companies to keep them rolling. The $13,000 project cost Tri-Town less than $3,000. Another example is the lighting installation: The full value of utility poles, outdoor floodlights, wire, miscellaneous controls and labor (700 man hours) was $6,150. Tri-Town’s cost was $1,000. On the basis of these figures, the Committee figured they could proceed with their plans to develop a $150,000 park for $50,000 excluding the amphitheater and youth building.
First Year Plan – Baseball field, tot’s area, softball diamond, apparatus area, skiing, sledding, ice skating and hockey rink, lawn games area, fishing pond, rest rooms, picnic area (start), drinking fountains, preliminary grading and landscaping.
Second Year Plan – Basketball court, touch football field, tennis court, children’s quiet area, picnic grounds (completed), older people activities area, roads, parking areas (start), bike parking facilities, landscaping and gardening.
Third Year Plan – Finished landscaping and gardening, completed roads and parking areas, fencing for entire park perimeter, entrances, addition of three more tennis courts, another ballfield and utility room for Youth building.
Completion of these three Year-plans would be at a total of a little over $50,000.
All those residents who were around at the time know what a success it was in 1962. The park is now called Clay Park South and is continuing to serve the community thanks to the management of the Clay Parks and Recreation Department. There was a complete renovation in 1980. The fishing pond and skating pond had to be filled in and made into soccer fields and there are now three softball fields. Improvements continue to be made but there is still the original first use of the park! Sledding!
NOTE: In 1961, Parents Magazine wrote an article about Tri-Town Park. If anyone has a copy of this article, please contact me so that it may be put in the Clay Historian Archives and shared with others.

Dorothy Heller, Historian
6-22-2018

Other
Remember Clay Stories

Image
Side Track Farmer%27s Market %231

Side Track Farmer's Market

Remembering Clay | Aug 26, 2016

REMEMBERING CLAY

Side Track Farmer's Market

Image
Glass Negatives 2 142  Copy (3)

Winter Then & Now

Remembering Clay | Apr 13, 2015

REMEMBERING CLAY Coping with Winter – Then and Now

Image
Immanuel Church Groundbreaking

Immanuel Lutheran Church Groundbreaking

Remembering Clay | Nov 6, 2015

REMEMBERING CLAY
Immanuel Lutheran Church Groundbreaking

Image
Ruth 1a

Ruth Lewis

Remembering Clay | Dec 19, 2016

REMEMBERING CLAY

Story of Ruth